Vakıfhan

İstanbul | 2024
Vakıfhan

Proje Hakkında

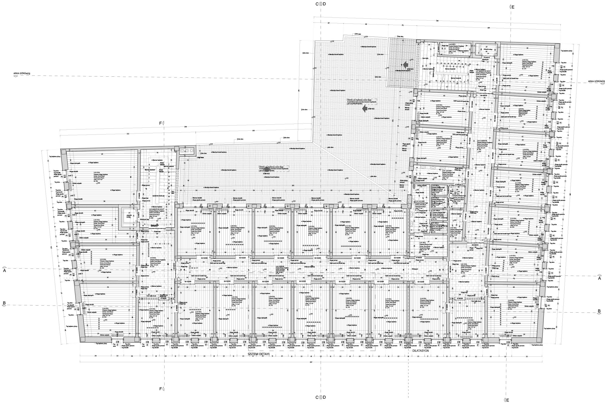
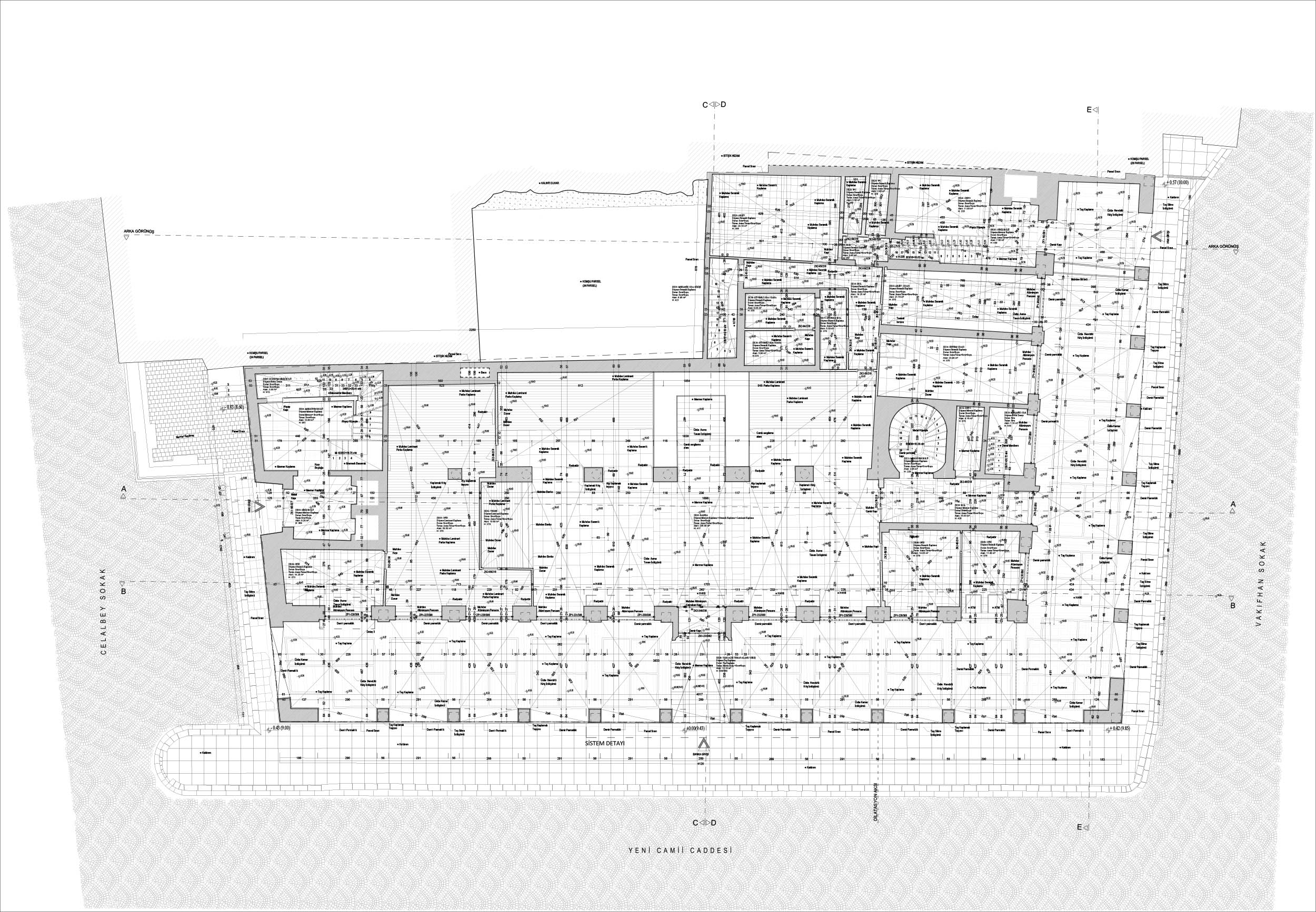
İstanbul İli, Fatih İlçesi, Hobyar (Eminönü) Mahallesi sınırları içinde 389 ada 35 parselde bulunan Vakıfhan, 1949-1952 yılları arasında inşa edilmiştir. Vakıflar mülkiyetindeki yapının rölöve ve restitüsyon projeleri tarafımızdan hazırlanmıştır.

Hizmet Kapsamı

  • Rölöve
  • Restitüsyon
  • Restorasyon
  • Danışmanlık / Proje Yönetimi

Restorasyon Süreci

Ön inceleme → belgeleme → analiz → proje geliştirme → kurum onayları → uygulama → raporlama adımları izlenir.